Aller à :

  • Aller à la recherche
  • Aller au menu principal
  • Aller au contenu
0
  • Accueil
  • L’AGENCE
  • Ventes
  • Locations
  • SERVICES
    • Vidéo Personnalisée
    • Estimation
  • Contact
0
VotreRecherche
Dans un rayon de
Budget
entre et €
Min €
Max €
Surface
entre et m²
Min m²
Max m²
Pièces
entre et Pièces
Min Pièces
Max Pièces
Critères supplémentaires
  1. Agence immobilière Saint-Saturnin-lès-Apt
  2. Vente
  3. Vaucluse
  4. Apt
  5. Villa
  6. T4
  7. Villa contemporaine de plain pied avec vue panoramique exceptionnelle apt 84400
Prix en baisse
Réf : 000100bis
Villa
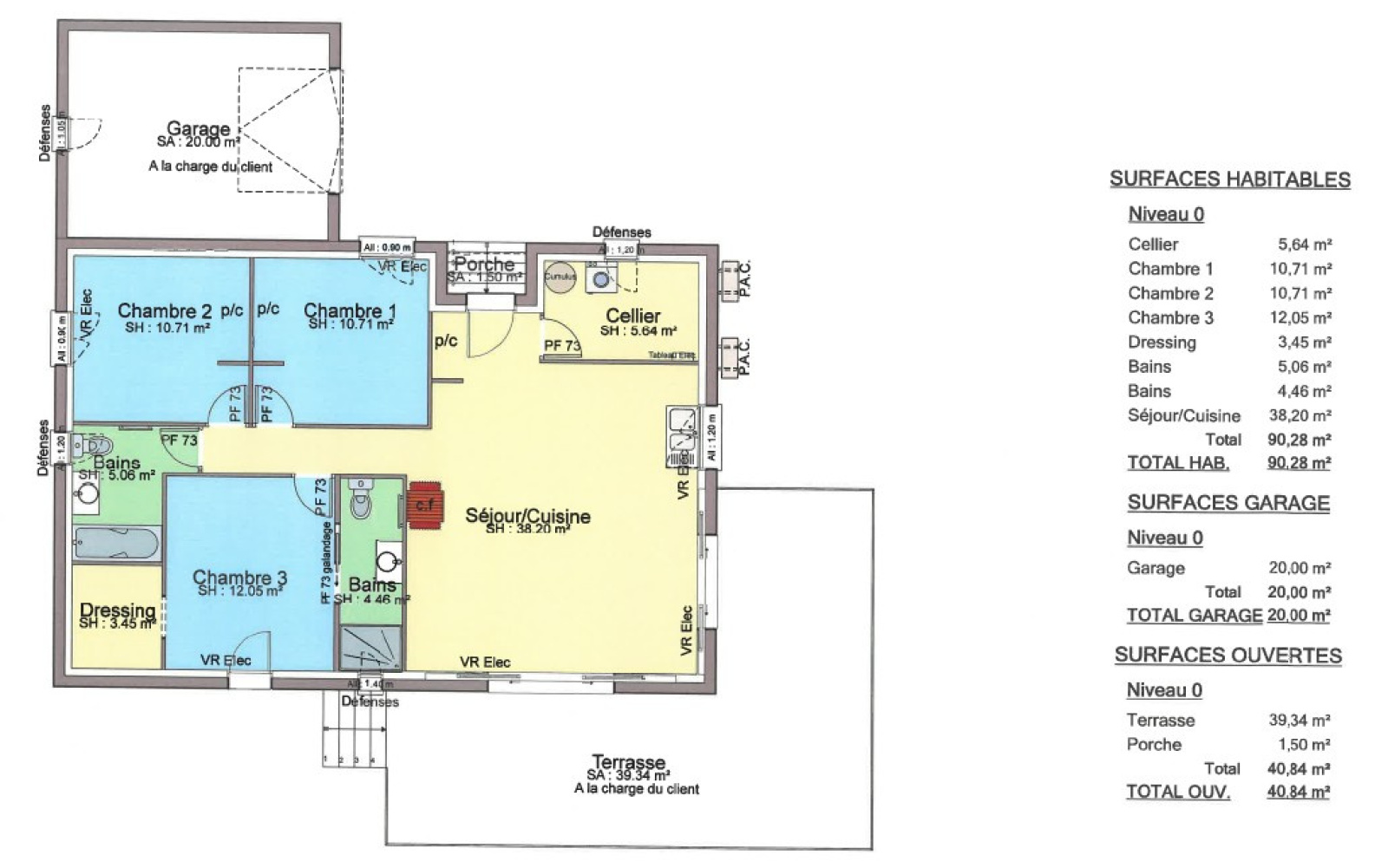
Villa contemporaine de plain-pied avec vue panoramique exceptionnelle Apt (84400)
Nombre de pièces 4
Nombre de chambres 3
Nombre de salles de bain 1
Salle d'eau 1
TRAD_MELTEM_Superficieterrainenm² 682 m²
Vidéo
Le bien en vidéo
SpotVideo
349 000 €

Villa contemporaine de plain-pied avec vue panoramique exceptionnelle Apt (84400) Apt (84400)

Tournel Immobilier vous propose cette villa récente aux prestations haut de gamme.

Située sur un terrain clos de 682 m², elle bénéficie d’une vue dominante à 180° sur le Luberon et les collines environnantes, un véritable havre de paix.

Construite en 2024, cette villa de plain-pied offre une surface habitable de 90 m². Elle se compose d’une entrée ouvrant sur un vaste séjour lumineux de 40 m² avec cuisine ouverte, équipée d’un îlot central. De larges baies vitrées à galandage permettent de contempler le paysage depuis cette pièce à vivre et offrent une continuité parfaite entre l’intérieur et une grande terrasse.

L’espace nuit se compose d’une suite parentale de 20 m² avec dressing, salle d’eau et WC, bénéficiant d’un accès direct à l’extérieur. Deux autres chambres de 11 m² chacune, ainsi qu’une salle de bain avec WC, complètent l’ensemble.

Annexe :
Garage fermé de 20 m².

Prestations de qualité :

  • Classe énergétique : AA

  • Chauffage réversible par pompe à chaleur gainable

  • Baies vitrées à galandage

  • Volets roulants électriques

  • Portail automatique

  • Arrosage goutte à goutte

  • Pré-installation pour poêle ou cheminée

  • Dossier de construction complet (garantie décennale, dommage-ouvrage, étude de sol, garantie des équipements...)

Située dans un quartier résidentiel calme et agréable, cette villa est une opportunité rare.

À visiter sans tarder !

  • Général
  • Détails +
  • Copropriété
  • Financier
  • DPE
  • Quartier
Caractérisque Valeurs
Code postal 84400
Surface habitable (m²) 90 m²
surface terrain 682 m²
Surface loi Carrez (m²) 90,28 m²
Nombre de chambre(s) 3
Nombre de pièces 4
Vue dominante
Caractérisque Valeurs
Nb de salle de bains 1
Nb de salle d'eau 1
Mode de chauffage Pompe à chaleur
Type de chauffage Air pulsé
Format de chauffage Individuel
Terrasse OUI
Nombre de garage 1
Exposition Sud-Est
Année de construction 2024
Caractérisque Valeurs
Copropriété NON
Caractérisque Valeurs
Prix de vente honoraires TTC inclus 349 000 €
DPE GES
  • Commerces et santé
  • Loisirs
  • Ecoles
  • Transports
  • Pratique
Cette offre
vous intéresse

* champs obligatoires

Les informations recueillies sur ce formulaire sont enregistrées dans un fichier informatisé par La Boite Immo agissant comme Sous-traitant du traitement pour la gestion de la clientèle/prospects de l'Agence / du Réseau qui reste Responsable du Traitement de vos Données personnelles. La base légale du traitement repose sur l'intérêt légitime de l'Agence / du Réseau. Elles sont conservées jusqu'à demande de suppression et sont destinées à l'Agence / au Réseau. Conformément à la loi « informatique et libertés », vous disposez des droits d’accès, de rectification, d’effacement, d’opposition, de limitation et de portabilité de vos données. Vous pouvez retirer votre consentement à tout moment en contactant directement l’Agence / Le Réseau. Consultez le site https://cnil.fr/fr pour plus d’informations sur vos droits. Si vous estimez, après avoir contacté l'Agence / le Réseau, que vos droits « Informatique et Libertés » ne sont pas respectés, vous pouvez adresser une réclamation à la CNIL. Nous vous informons de l’existence de la liste d'opposition au démarchage téléphonique « Bloctel », sur laquelle vous pouvez vous inscrire ici : https://www.bloctel.gouv.fr Dans le cadre de la protection des Données personnelles, nous vous invitons à ne pas inscrire de Données sensibles dans le champ de saisie libre.
Ce site est protégé par reCAPTCHA, les Politiques de Confidentialité et les Conditions d'Utilisation de Google s'appliquent.

Partager le bien
Nos outils
Imprimer Imprimer
Calculatrice financière

* Champ obligatoire

Partager l'annonce

* champs obligatoires

Les informations recueillies sur ce formulaire sont enregistrées dans un fichier informatisé par La Boite Immo agissant comme Sous-traitant du traitement pour la gestion de la clientèle/prospects de l'Agence / du Réseau qui reste Responsable du Traitement de vos Données personnelles. La base légale du traitement repose sur l'intérêt légitime de l'Agence / du Réseau. Elles sont conservées jusqu'à demande de suppression et sont destinées à l'Agence / au Réseau. Conformément à la loi « informatique et libertés », vous disposez des droits d’accès, de rectification, d’effacement, d’opposition, de limitation et de portabilité de vos données. Vous pouvez retirer votre consentement à tout moment en contactant directement l’Agence / Le Réseau. Consultez le site https://cnil.fr/fr pour plus d’informations sur vos droits. Si vous estimez, après avoir contacté l'Agence / le Réseau, que vos droits « Informatique et Libertés » ne sont pas respectés, vous pouvez adresser une réclamation à la CNIL. Nous vous informons de l’existence de la liste d'opposition au démarchage téléphonique « Bloctel », sur laquelle vous pouvez vous inscrire ici : https://www.bloctel.gouv.fr Dans le cadre de la protection des Données personnelles, nous vous invitons à ne pas inscrire de Données sensibles dans le champ de saisie libre.
Ce site est protégé par reCAPTCHA, les Politiques de Confidentialité et les Conditions d'Utilisation de Google s'appliquent.

Détail des diagnostics énergétiques
DPE GES
DPE en cours

Partager avec vos proches

Facebook Facebook
Messenger Messenger
Twitter Twitter
WhatsApp WhatsApp
LinkedIn LinkedIn
Copier le lien Copier le lien
Autres biens

Ces biens peuvent aussi vous intéresser

Maison

Proche village avec vue dominante

Saint-Saturnin-lès-Apt (84490)
Voir le bien
Maison

Villa avec vue dominante et vaste dépendance de 112 m² !

Gargas (84400)
Voir le bien
Se connecter
Espace propriétaire
Page d'accueil
Adhérents

© 2026 | Tous droits réservés | Traduction powered by Google |

  • Nos honoraires
  • Plan du site
  • Mentions légales
  • Admin
  • Nos liens
  • Politique RGPD

Comme beaucoup, notre site utilise les cookies

On aimerait vous accompagner pendant votre visite. En poursuivant, vous acceptez l'utilisation des cookies par ce site, afin de vous proposer des contenus adaptés et réaliser des statistiques !

Paramétrer

Statistiques de visites

Pour améliorer votre expérience, on a besoin de savoir ce qui vous intéresse !
Les données récoltées sont anonymisées.

?

Google Analytics

requis
?

Google Tag Mananger

requis
En savoir plus